





Description
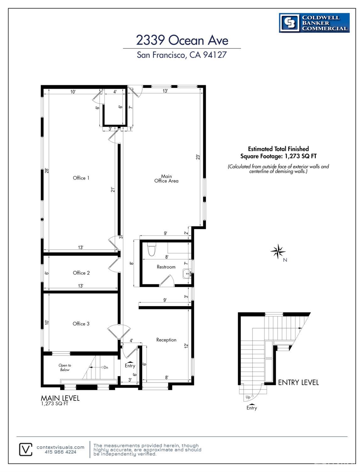
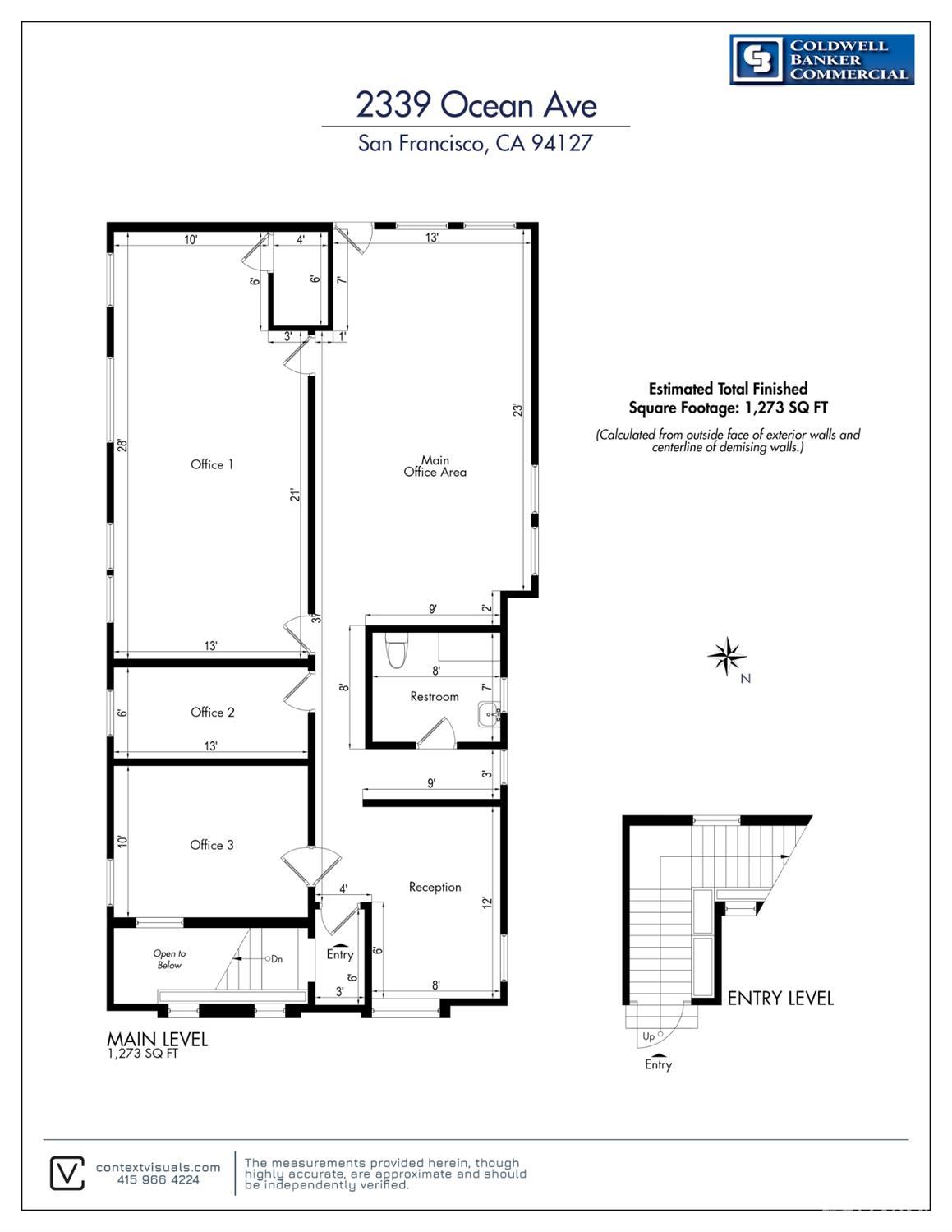
PRICE REDUCED! Second floor office with great southern exposure and views! Approximately 1275 sq. ft. on the Ocean Ave Streetcar line close to I-280. Great visibility, low triple net. Freshly painted and new flooring. ADA entrance compliance completed. Zoned NC 1. 2337 is also available - Retail Store Front. 1177 Sq. Ft. $2,500 per month. Triple Net is approximately $550 per month.
Location
Listed By
Listing Agent
Nick Johnson
Coldwell Banker Realty
Similar Listings
No similar listings found
Unfortunately, we don't have any similar listings at the moment. Please remove or change some of the selected filters.
Information Deemed Reliable But Not Guaranteed. The information being provided is for consumer's personal, non-commercial use and may not be used for any purpose other than to identify prospective properties consumers may be interested in purchasing. This information, including square footage, while not guaranteed, has been acquired from sources believed to be reliable. Listings on this page identified as belonging to another listing firm are based upon data obtained from the SFAR MLS, which data is copyrighted by the San Francisco Association of REALTORS ®, but is not warranted. Updated: 23rd April, 2026 4:05 PM (UTC)
Listing Agent: Nick Johnson
Listing Office: Coldwell Banker Realty


































































