





Description
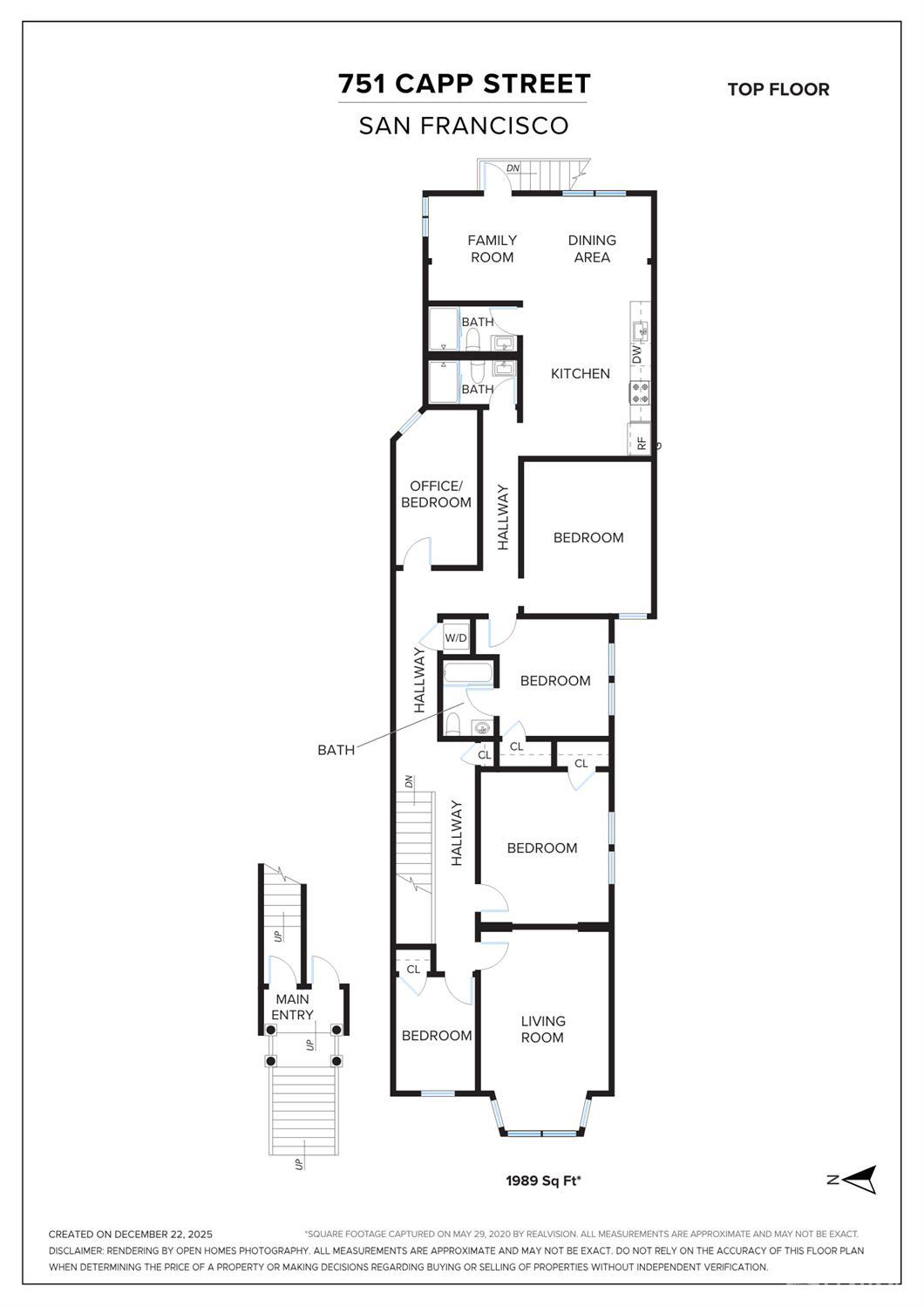
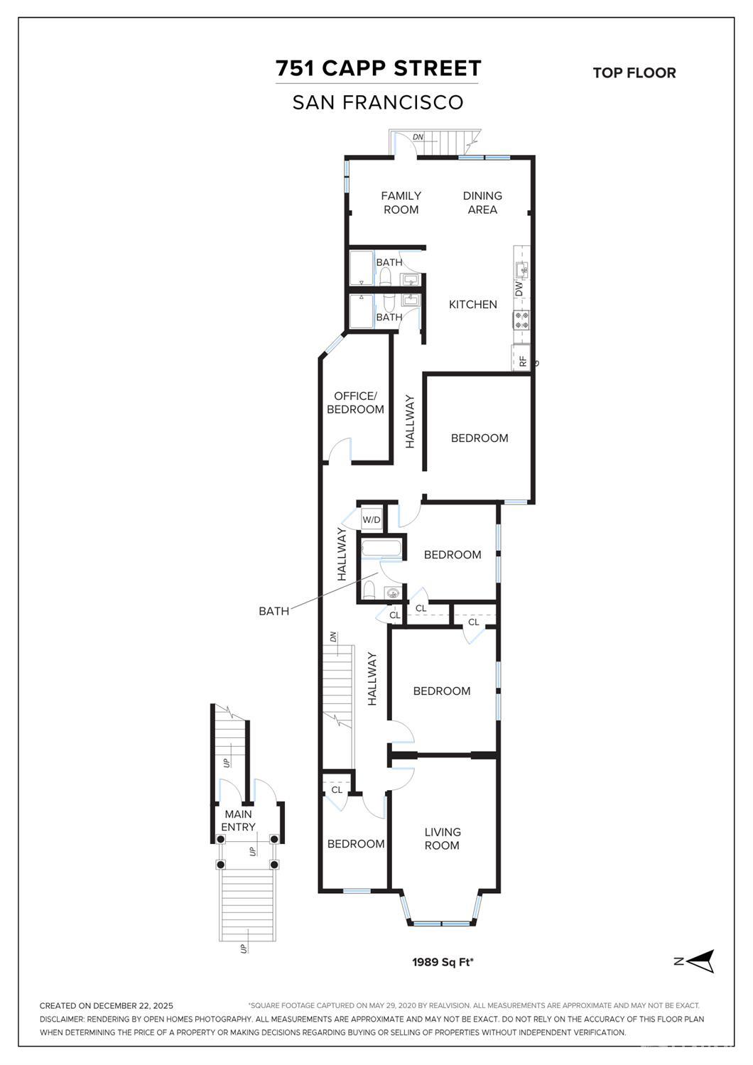
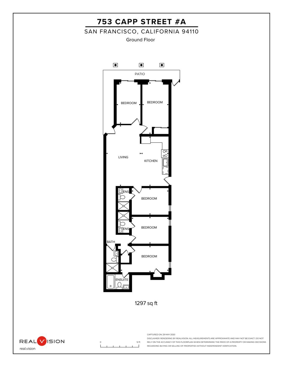
Mission District Triplex Perfect for Co-Housing, Multi-generational Living, OR Investment. This isn't just another investment; it's your chance to build an intentional community with the people you love most. Picture This: You and your closest friends co-buying this renovated 3-unit Victorian building, live in your own flat, and share the backyard. Or, live in the spectacular vacant top unit yourself while rental income from the lower floors covers most of your mortgage. Whether you're creating a friend compound, multigenerational family living, or a smart investment property, this building delivers. Fully updated kitchens, bathrooms + ethernet, we've retained the gorgeous historic Stick/Eastlake style Victorian outside with modern systems inside! In-unit laundry, Sunny shared backyard with lemon tree, 1-car VACANT garage + storage. Top Floor (VACANT): approx 1,900 sf of sun-drenched perfection. 6 bedrooms, 3 bathrooms, original stained glass bay windows, soaring ceilings & skylights. Middle Unit: 6 bedrooms, 3 bathrooms, Victorian Details, Bay Windows, approx 1,750sf, Garden Level Unit: 5 bedrooms, 3 bathrooms approx 1,300 sf. (Both middle & garden units currently occupied by market-rate tenants generating immediate income, though garden unit can also be delivered vacant. ) Steps from great dining, shops, cafes and nightlife: Beretta Valencia, Alamo Drafthouse, Wise Sons, Tartine, and 24th St. Easy walk to BART, Muni, & Tech shuttles. Walk Score 98, Transit Score 95, Bike Score 99. Close to freeways, Plus, the Mission has the best weather in SF! This is the opportunity to reimagine how you live and who you live near. Don't Miss!
Location
Listed By
Information Deemed Reliable But Not Guaranteed. The information being provided is for consumer's personal, non-commercial use and may not be used for any purpose other than to identify prospective properties consumers may be interested in purchasing. This information, including square footage, while not guaranteed, has been acquired from sources believed to be reliable. Listings on this page identified as belonging to another listing firm are based upon data obtained from the SFAR MLS, which data is copyrighted by the San Francisco Association of REALTORS ®, but is not warranted. Updated: 12th February, 2026 4:23 PM (UTC)
Listing Agent: Lisa Zahner
Listing Office: City Real Estate



















































































































































































